Anderson Institute of Technology
Anderson School District Five
"Your Penny at Work"

Planned Opening Date
August 2019
Anderson Institute of Technology
(Partnership between School Districts 3, 4, and 5)
Time-Lapse
Exterior and Interior Video
Construction Progress Videos
November 21, 2017
November 29, 2017
December 6, 2017
January 3, 2018
January 9, 2018
January 24, 2018
February 8, 2018
February 21, 2018
March 6, 2018
September 11, 2018
September 25, 2018
October 9, 2018
Conceptual Interior Tour
Conceptual Exterior Tour
Front Entrance

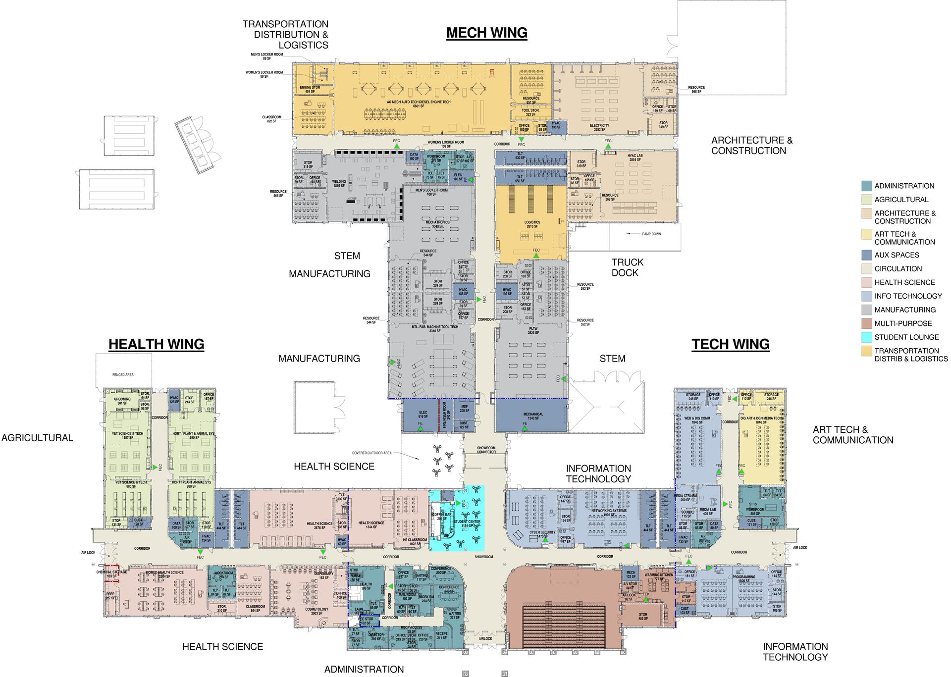
Overall Floor Plan

Site Plan